Billedgalleri
(1/13)
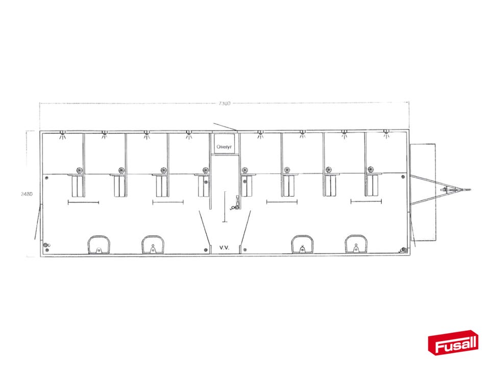
Skurvogn 730 | Badvogn med oliefyr og 2x4 brusekabiner | 2011
Til salg111.250 kr.
Beskrivelse
Scanvogn er en amerikansk-ejet producent. Badvogn med kønsopdelt omklædning og bad. Der er i alt 8 bad, 4 i hver ende af vognen. Denne vogn egner sig til byggepladsen, festivaler eller andre events, hvor begge køn skal have mulighed for omklædning separat. Vognen har i alt 8 bad med indgang fra hver ende til henholdsvis kvinder og mænd. I hver ende af badvognen er der 4 brusekabiner med bænk og knager til ophæng af tøj, 2 håndvaske og radiator. Radiator gør at vognen kan bruges året rundt, uanset vejret udenfor. De 2 omklædningsrum er skilt ad med dobbelt dør. Imellem findes 1000Liter varmtvandsbeholder. Oliefyr til opvarmning. Badvognen har en kapacitet på ca. 45 bad pr. time. Vognen er i god stand og klar til brug. Kontakt os for at høre om mulighed for fremvisning.
Bemærk: Knappen til at vise den fulde beskrivelse har kun en visuel effekt.
Lokation
| Annonce-ID | 14334624 |
|---|---|
| Sidst redigeret | 24.2.2026 kl. 17:02 |