Billedgalleri
(1/8)
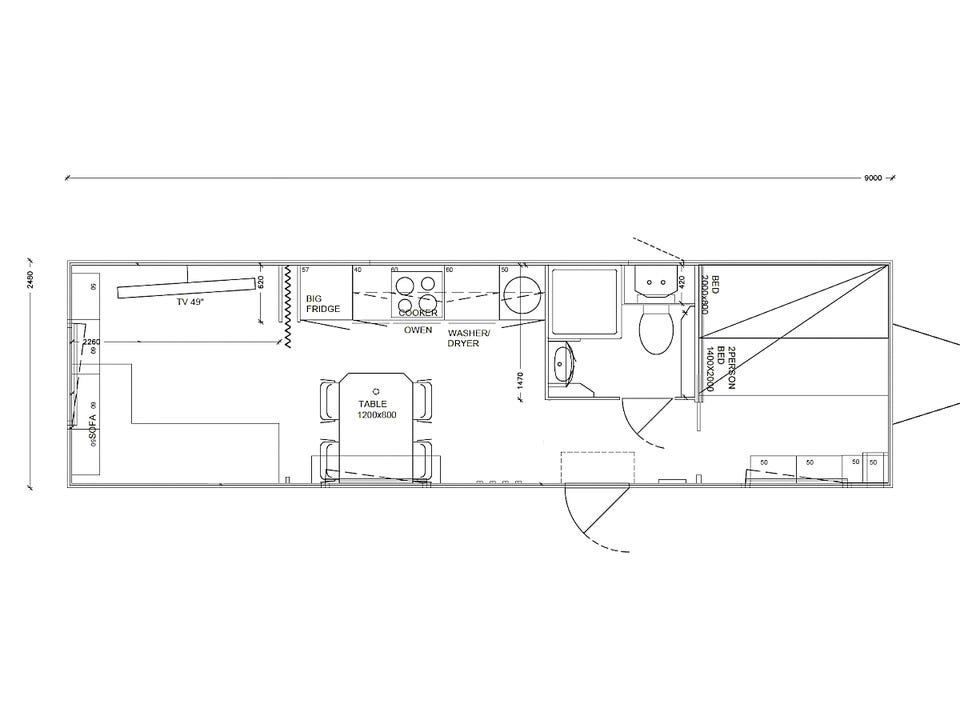
Skurvogn 900 | Beboelsesvogn til 3-5 pers. | 2025
Til salg293.750 kr.
Beskrivelse
EasyWagon er 100% danskejet producent af letvogne! Model 900 er en fabriksny beboelsesvogn med separat soverum, badeværelse og opholdsrum med køkken. Vognen er velegnet til mange forskellige formål. Beboelsesvognen kan f. eks. anvendes i byggebranchen, ved renovering eller til dem der har brug for ekstra plads. Køkken er veludstyret med køleskab, ovn, kogeplade, emhætte og håndvask. Flere stikkontakter giver god mulighed for tilslutning af kaffemaskine, mikroovn eller andet. Toilet med kværn, lille håndvask og bad.
Bemærk: Knappen til at vise den fulde beskrivelse har kun en visuel effekt.
Lokation
| Annonce-ID | 11508049 |
|---|---|
| Sidst redigeret | 24.2.2026 kl. 17:02 |