Billedgalleri
Trælade, 2 x 166 m2
Til salg
348.000 kr.
Varebeskrivelse
Stand: Helt ny - uåbnet/med prismærke
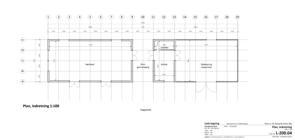
Fuldtømmer-lade 372 m² – traditionelle samlinger – inkl. statik, brand og stål
Markant og gennemarbejdet lade i kraftigt fuldtømmer udbydes til salg.
Bygningen består af to bygningsvolumener på hver 166 m², forbundet af en central portgennemkørsel. Samlet areal udgør 372 m² inkl. gennemkørsel. Disponeringen giver fleksible anvendelsesmuligheder – oplagt til landbrug, værksted, lager, produktion, fællesskabsbyggeri eller erhverv.
Konstruktionen er udført i douglas gran og med traditionelle tømmersamlinger, som sikrer en stærk, dokumenteret og langtidsholdbar løsning med høj håndværksmæssig kvalitet. En ærlig og robust trækonstruktion, der kan stå synlig og danne rammen om et karakterfuldt byggeri.
Prisen omfatter:
• Komplet tømmerkonstruktion til vægge, gulv og tag
• Traditionelle tømmersamlinger
• Forankringsstål
• Statiske beregninger (ingeniørprojekt)
• Brandprojekt
Dokumenterede delomkostninger:
• Forankringsstål: kr. 28.000
• Statik (ingeniørberegninger): kr. 35.000
• Brandprojekt: kr. 26.000
• Indkøb af tømmer: kr. 155.000
Hertil kommer tømrerarbejdet med tilhugning og forarbejdning af tømmeret.
Projektet er teknisk gennemarbejdet og klar til realisering. En solid investering i kvalitetstræ og godt håndværk – med både funktionel og arkitektonisk værdi.
Seriøse henvendelser besvares gerne med yderligere information og tegningsmateriale.
Henvendelse tel. 20485818 eller ubn@uffe-black.dk
Brugerprofil
Du skal være logget ind for at se brugerprofiler og sende beskeder.
Log indAnnoncens metadata
Sidst redigeret: 24.2.2026 kl. 13:48 ・ Annonce-ID: 18962584