Billedgalleri
(1/21)
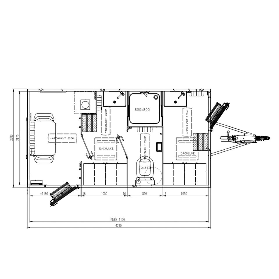
Kongeaa Inter 420 | Miljøvogn til 2 personer | 1.500 kg
Til salg156.000 kr.
Beskrivelse
Oplev komforten med Kongeaa Inter 420 miljø- og mandskabsvognKongeaa Inter 420 miljøvognen er en fremragende løsning til arbejdspladser, der kræver en sikker og effektiv opdeling af arbejds- og opholdsområder. Denne miljøvogn er designet med to separate zoner, der sikrer, at kontamineret arbejdstøj holdes adskilt fra spise- og toiletfaciliteterne. Dette er særligt vigtigt på byggepladser, der håndterer farlige og skadelige materialer.Funktionel og sikker opdelingBruseren i Kongeaa Inter 420 fungerer som en effektiv sluse mellem den kontaminerede og den rene zone. Dette design sikrer, at medarbejderne kan skifte fra arbejdstøj til rent tøj uden at overføre forurening til spiseområdet, omklædningsrummet og toilettet.Komfort og bekvemmelighedOpholdsrummet er udstyret med et spisebord og to stole, hvilket giver et behageligt sted at nyde pauserne. Der er også et køleskab (122 L) med fryserum (18 L) og en kaffemaskine, der sikrer, at forfriskninger altid er inden for rækkevidde. Med en opslagstavle, knager og 4 skabe er der også plads til at organisere og opbevare personlige ejendele.Moderne faciliteterToiletrummet er udstyret med et vandskyllende toilet med kværn, en håndvask med både koldt og varmt vand, og en 30 liters varmtvandsbeholder. Traileren er udstyret med elvarme, som sikrer komfort i alle vejrforhold.Robust og let sandwich konstruktionMiljøvognen er fremstillet af isolerende sandwichpaneler, hvor siderne er 50 mm tykke og bunden 60 mm. Disse paneler gør vognen både let og stærk, hvilket sikrer lang holdbarhed.Chassiset består af en galvaniseret stålramme med AL-KO aksel, der tilføjer ekstra styrke og stabilitet. Med en totalvægt på 1.500 kg og en lasteevne på 161 kg er vognen både robust og praktisk.Specifikationer for Kongeaa Inter 420Totalvægt og dimensioner:** Vognen har en totalvægt på 1.500 kg med en indvendig længde på 413 cm og bredde på 217 cm, der sikrer god pladsudnyttelse.Bremse og affjedring: Udstyret med bremse og en gummifjederophængning, er stabilitet og sikkerhed under transport garanteret.Materiale og opbygning: Sandwichkonstruktion af vægge og bund med en tykkelse på henholdsvis 50 mm og 60 mm, bidrager til varmeisolering og lydreduktion.Designet til to personer: Perfekt til mindre teams, der har brug for et funktionelt og komfortabelt arbejdsrum.Robuste hjul: 13-tommer hjul sikrer jævn kørsel på forskellige typer terræn.Kongeaa Inter 420 miljøvognen er en ideel løsning for dig, der søger en praktisk, sikker og komfortabel arbejdsplads på farten. Indretningen opfylder vigtige sikkerhedskrav og bidrager til et sundere arbejdsmiljø, hvor medarbejderne kan føle sig trygge og godt tilpas.Med Kongeaa Inter 420 miljøvognen får du alsidighed og komfort til arbejdspladsen i én komplet løsning.Husk slangesæt til Kongeaa Inter 420 mandskabsvognFor at gøre din Kongeaa Inter 420 miljøvogn endnu mere funktionel, kan du tilpasse den med et udvalg af tilbehør. Du kan blandt andet købe et slangesæt, der passer perfekt til traileren, direkte hos os. Udforsk det fulde sortiment af tilbehør her: [Kongeaa Tilbehørskategori](https://kongeaa.dk/trailer-reservedele.html) for at finde de ideelle løsninger til din mandskabsvogn.Køb Kongeaa Inter 420 miljøvogn i dagHar du brug for en pålidelig og komfortabel løsning til dine arbejdsbehov? Køb Kongeaa Inter 420 miljøvogn online i vores webshop allerede i dag, eller kontakt Kongeaa Trailercenters dygtige salgsteam på telefon 75382600 for mere information.Oplev Danmarks største trailercenterDu kan også besøge vores kæmpe salgsudstilling for at se vognen og få en førstehåndsoplevelse. Vores team står klar til at tilbyde en personlig gennemgang og besvare yderligere spørgsmål. Kongeaa Trailercenter ligger lige ved motorvej E20, afkørsel 69 – nemt og hurtigt at komme til!
Ved henvendelse, oplys venligst varenummer:INT-220001
KIG FORBI KONGEAA TRAILERCENTER PÅ STENBRO ALLÉ I BRØRUP – LIGE VED AFKØRSEL 69.
VI TILBYDER DANMARKS ST...
Bemærk: Knappen til at vise den fulde beskrivelse har kun en visuel effekt.
Lokation
| Annonce-ID | 16932060 |
|---|---|
| Sidst redigeret | 16.12.2025 kl. 14:47 |