Billedgalleri
(1/47)
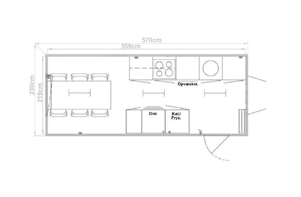
Kongeaa K570-6P - Køkkenvogn m/ Masser af bordplads og Stor udstyrspakke
Til salg174.750 kr.
Beskrivelse
Kongeaa K570-6P – Rummelig køkkenvogn med stor udstyrspakkeFuldt køkkenKongeaa K570 er en rummelig køkkenvogn til 6 personer. Vognen har fuldt køkken inkl. mikroovn, stort køleskab, separat fryserog ovn, samt el-kogeplader, emhætte og opvaskemaskine – alle hvidevarer er fra danske Scandomestic.Der medfølger service til 6 personer samt gryde, pande m.m.Der er koldt og varmt vand i hanen, og afløbet er forsynet med kværn. Varmtvandsbeholder fra danske Metro-Therm er placeret i separat skab ved siden af vasken.Rummelig køkken-/spisevognVognen har god plads til 6 personer og indeholder stort, 180 cm langt, spisebord og 6 komfortable stole. Vognen har skuffer med soft-close og masser af skabsplads.Lys og komfortabel mandskabsvognTo store vinduer og tre kraftige loftsarmaturer sørger for lys og de to el-radiatorer klarer opvarmningen på kolde dage. Ved døren er der knager til tøjetog en praktisk bænk/hylde til fodtøj tæt ved radiatoren.Kongeaa K570-6P er en veludstyret mandskabsvogn, specialindrettet til dine medarbejdere. Vognen er lys og komfortabel, og giver gode rammer for en pausei en travl hverdag. Køkkenet er fuldt udstyret og giver gode mulighed for at tilberede et varmt og solidt måltid.Strømtilslutning: 400VByvandstilslutninf: 3/4"Afløb: 1"
Ved henvendelse, oplys venligst varenummer:EAW-300001
KIG FORBI KONGEAA TRAILERCENTER PÅ STENBRO ALLÉ I BRØRUP – LIGE VED AFKØRSEL 69.
VI TILBYDER DANMARKS STØRSTE UDVALG AF NYE OG BRUGTE TRAILERE, OG HAR ALTID OVER 3500 TRAILERE PÅ LAGER.
VI HAR DESUDEN EGET MOTORKONTOR, SÅ DU KAN FÅ DIN NYE TRAILER MED HJEM SAMME DAG – OGSÅ UDEN AT TAGE EN KRONE OP AD LOMMEN!
VI HJÆLPER GERNE MED FINANSIERING AF DIN NYE ELLER BRUGTE TRAILER, HELT OP TIL 500.000 UDEN UDBETALING!
VI ER ALTID KLAR MED ET GODT TILBUD, OG TAGER GERNE DIN BRUGTE TRAILER I BYTTE.
Vi HAR ÅBENT MANDAG – FREDAG FRA KL. 8.00 TIL KL. 17.00 SAMT LØRDAG FRA KL. 09.00 TIL KL. 14.00. SØNDAG LUKKET, ÅBENT EFTER AFTALE.
Bemærk: Knappen til at vise den fulde beskrivelse har kun en visuel effekt.
Lokation
| Annonce-ID | 16930645 |
|---|---|
| Sidst redigeret | 25.2.2026 kl. 11:00 |