Billedgalleri
Beboelsesvogn / tinyhouse
Til salg
170.000 kr.
Varebeskrivelse
Stand: Brugt - men i god stand
Vores hyggelige lille hjem er til salg.
Vi har boet i denne renoverede beboelsesvogn de sidste to år med vores to børn, mens vi har planlagt vores byggeri.
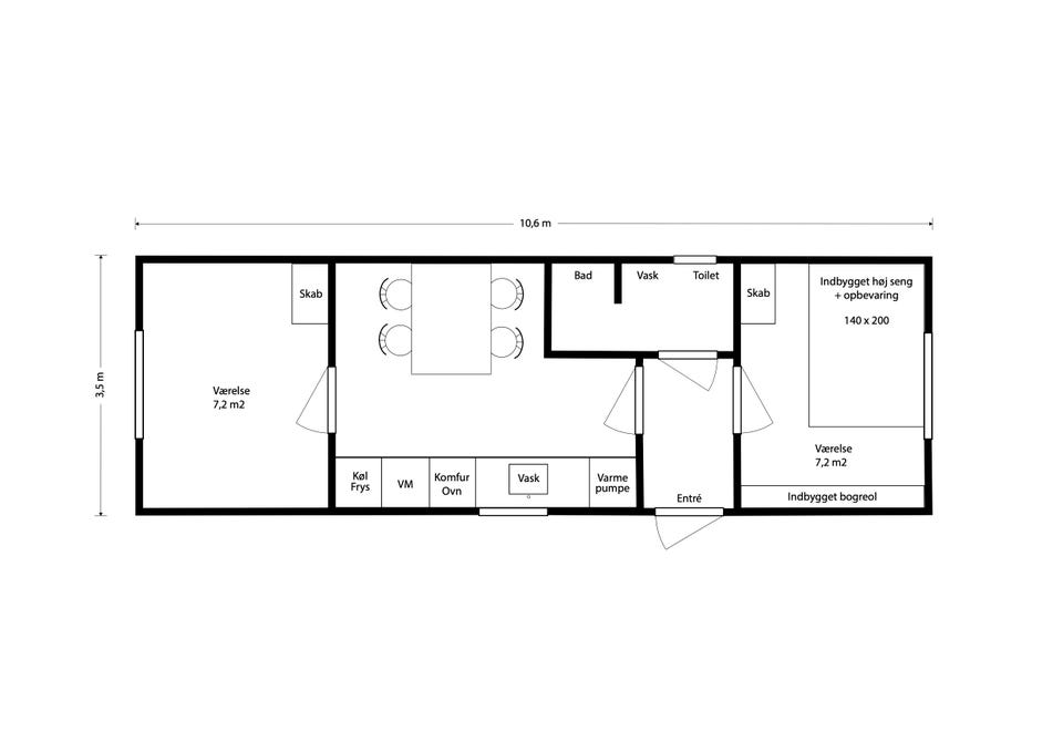
Vognen er på 37 m2 og har en rigtig god planløsning (se vedlagt tegning).
Vognen virker meget rumlig trods størrelsen pga. en høj loftshøjde.
Der er to værelser i hver ende med store vinduer, der giver massere af lys. De to værelser gør det muligt at indrette seperat børneværelse eller stue, hvilket vi har været rigtig glade for. I det ene soveværelse medfølger indbygget seng med opbevaring under og en indbygget reol.
Vi har været rigtig glade for at have en separat entré og køkken-alrum og et toilet med bad i fin størrelse.
Køkkenet har vi renoveret med bordplade og hylder i egetræ.
I køkkenet medfølger også køleskab/fryser, komfur/ovn og vaskemaskine.
Der er el-radiator og ventilationsskakte i alle rum og vi har uden problemer boet i vognen igennem vintrene (-13 C).
Vi har lagt nyt træloft og yderligere isolering i loftet, så kravene i bygningsreglementet for midlertidig beboelse opfyldes. (Tegningsmateriale og udregninger af U-værdier kan naturligvis medfølge i køb).
Pris 170.000 kr ex. transport (kan gøres uden følgebil).
Overtagelse fra omkring Maj 2026.
Det kan være svært at fornemme størrelsen på billederne, men hvis de vækker din/jeres interesse, så kom forbi og se den.
Brugerprofil
Du skal være logget ind for at se brugerprofiler og sende beskeder.
Log indAnnoncens metadata
Sidst redigeret: 16.12.2025 kl. 11:59 ・ Annonce-ID: 16925554