Billedgalleri
Køkkenbordplade / Hjørnebordplade / Vinkelbordplade / bordplade
Til salg
4.500 kr.
Varebeskrivelse
Stand: Helt ny - uåbnet/med prismærke
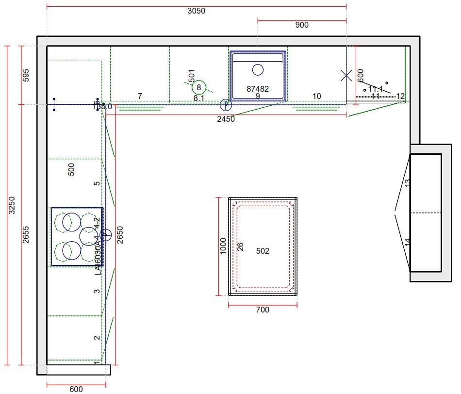
Køkkenbordplade / Hjørnebordplade / Vinkelbordplade / bordplade
Helt ny Laminatbordplade fra udstillingskøkken, bordpladen er 38 mm tyk.
325cm x 305cm, se tegninger for nøjagtige mål.
Sælges inkl. følgende:
Sort SCHOCK vask Mono N-100 magma granitvask med drejeknap afløb og bagpanel.
Lille spisebord i samme materiale / design som bordpladen, tungt og robust, 70cm x 100cm med sort metalstel.
Udskæring til kogeplade er 49cm (dybde) x 56cm (bredde)
Bordpladerne sælges kun samlet, da pladerne er skåret i smig, der medfølger beslag til samling.
Kan leveres til prisen på åben trailer indenfor rimelig afstand fra Randers.
Brugerprofil
Du skal være logget ind for at se brugerprofiler og sende beskeder.
Log indAnnoncens metadata
Sidst redigeret: 22.1.2026 kl. 13:39 ・ Annonce-ID: 14703980
