Billedgalleri
(1/8)
3 personers beboelsesvogn - UDLEJES!
Til salg1 kr.
Beskrivelse
UDLEJES!
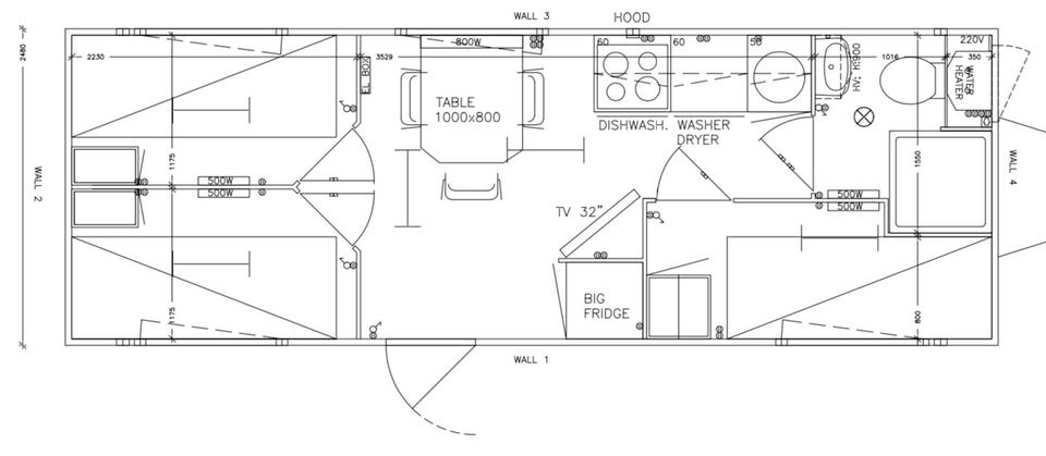
Vognen indeholder et fælles køkken alrum, hvor der kan slappes af og ses tv efter en lang arbejdsdag. Fra køkken/alrummet er der adgang til alle de 3 værelser og til et komplet badeværelse. I hvert værelse er der en rigtig god boksmadras, så medarbejderne kan få en god nats søvn, samt et låsbart skab. I køkkenet er der også installeret en kombi vaskemaskine/tørretumbler.
Inventar
Komplet badeværelse med:
Toilet med kværn
Brusekabine
Håndvask
Komplet køkken med:
Kogeplade
Højt køleskab fryseskab
Opvaskemaskine
Kombi vaskemaskine/tørretumbler
Håndvask
Masser af skabsplads m/ faste overskabe
Stort tv med drejbart vægbeslag og digital antenne.
3 stk. enkelt boksmadrasser
Ventilation med varmegenvinding (Ikke monteret i alle vogne)
Teknisk info
Dimensioner BxL (med træk) xH 250×730(880)x292 cm
Egenvægt: 1800 kg
Total vægt: 2000 kg
Tilslutninger: 25 meter 3/4" vandslange
25 meter 1" afløbsslange
25 meter elkabel med 380 Volt / 16 Amp CEE stik (Røde)
Priser
Leje - kontakt os for et tilbud
Priserne er inkl. alle slange og kabler samt inventar. Og ekskl. transport og tilslutning.
Hos Simple Homes står vi altid klar til hjælpe dig med at finde den helt rigtige vogn til netop dine behov! Har du brug for at leje en anden type husvogn? Hvad med en 2 personers beboelsesvogn? Eller måske en mandskabsvogn, en toiletvogn, et badmobil eller en skurvogn til kontor og opbevaring? Se vores andre annoncer eller ring til os for en uforpligtende snak.
Bemærk: Knappen til at vise den fulde beskrivelse har kun en visuel effekt.
Lokation
| Annonce-ID | 10522810 |
|---|---|
| Sidst redigeret | 4.6.2025 kl. 20:33 |
